New Caelifera is a project completed by Johnston Architects.
The home is located in Winthrop, Washington, USA, and covers an area of 2,520 square feet.
New Caelifera by Johnston Architects:
“Set in a rural valley of ranches and orchards, the owners named the project “New Caelifera” after the scientific name for the grasshoppers that live on the site. Like a grasshopper, the building sits lightly on the meadow with a low profile.
The owners like the angular aesthetic of origami. We responded by metaphorically lifting the landscape and folding in the house. We created a steel shell that shelters a pavilion of glass and cedar. The result is a dynamic harmony between sculptural and tectonic elements.
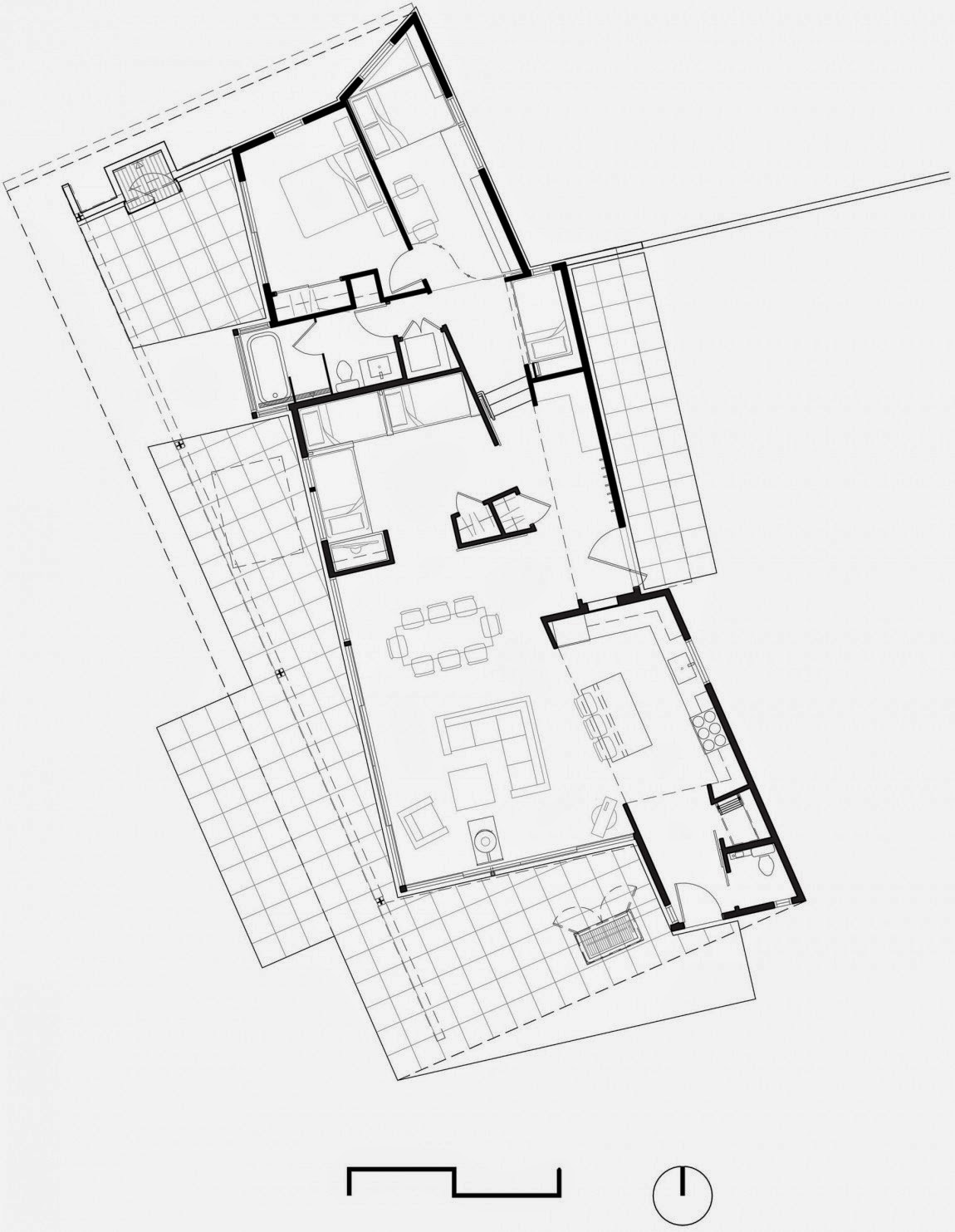
Topography and views were drivers in the design process. We drew vectors corresponding to view corridors to dramatic peaks in the Sawtooth Mountains. These vectors formed the basis for the floor plan. The angles in the surrounding hills inspired the slope of the roof.
The structure is a landmark that welcomes the family upon approach. We created a substantial steel facade, a strong threshold into the refuge beyond. The entry façade temporarily obscures the views creating a heightened sense of anticipation. The wood lined vestibule enhances the experience of crossing a portal into a new domain. The living space faces a wall of windows revealing light and views.
We imagined a day in the life of the family and their lifestyle. This resulted in a stage-like kitchen that is on display and connected yet also a room unto itself. We built in spaces for discovery such as a hidden play space accessible by ladder.
The clients have been engaged in the process. They supplied images and anecdotes about favorite childhood memories, places, and travel. They describe time at New Caelifera as having a dream-like quality wherein everything is recognizable yet completely new.
The one bedroom cabin sleeps nine people in the winter and eleven in summer. Efficiency is accomplished by tucking beds into nooks, the study, the den, and a suspended outdoor bed. Guests are accommodated with grace and privacy in a modest amount of space.
The experience of New Caelifera is evocative of inhabiting a found object that is still partially buried in a Methow Valley meadow. The effect varies based on season and time of day. In the afternoon the patina of the natural materials gives it an earthy appeal. After sunset it has the moodiness and dramatic lighting of a stage. It is an authentic space where everything is familiar yet original, down-to-earth yet glamorous, and industrial with a warm heart.”
Photos by: Ray Johnston & Mary Kiesau





















